Городской округ Истра
- Тип сделки
- Продажа
- Направление
- Новорижское
- Удаленность от МКАД
- 55 км
- Населённый пункт
- городской округ Истра
- Коттеджный посёлок
- ТРОИЦА
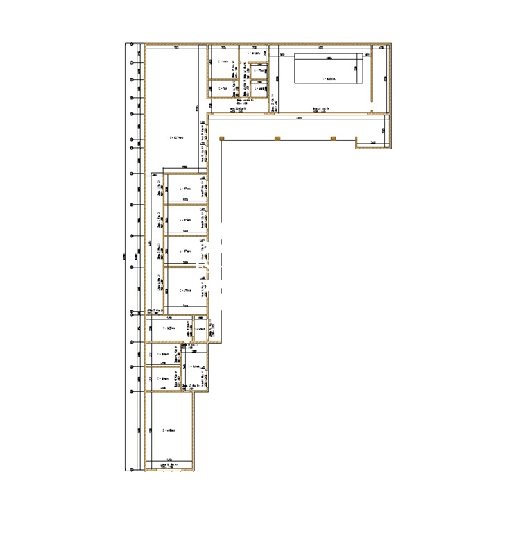
- Общая площадь дома
- 509 м2
- Площадь участка
- 15 сот.
- Таунхаус
- Нет
Описание
Коттедж 509 кв.м. на участке 15 соток в охраняемом КП «Троица» на Новой Риге.
Одноэтажный дом 2016 года постройки выполнен в современном стиле. Вентилируемый фасад не перегружен деталями, но изящно декорирован камнем и фасадной подсветкой. Плоская кровля – одно из преимуществ дома. Дополнительная полезная площадь отлично подходит для использования в качестве дополнительного пространства — можно разбить цветник или сделать зону отдыха.
Большие площади остекления визуально увеличивают пространство внутреннего интерьера и придают объема снаружи.
В доме 3 просторные спальни, гостиная – кухня – столовая с каминной зоной, прихожая, вспомогательные помещения, котельная – бойлерная, а также SPA-зона с бассейном и сауной.
Внутренняя отделка дома выполнена на 80%. Использованы натуральные отделочные материалы.
Конструкция дома – монолит-кирпич.
Коммуникации центральные. Электричество заведено в дом, канализация заведена до стояка, водопровод - две скважины с водозаборным узлом, газ высокого давления.
Гараж на 1 м/м.
Современный коттеджный комплекс «Троица» на Новой Риге, в 55 км от Москвы. Дорога от поселка до столицы занимает 40-50 минут. Рядом остановка общественного транспорта.
На территории поселка благоустроены зоны отдыха, парковая зона, детская площадка. Работает магазин. Территория огорожена по периметру, КПП на въезде, осуществляется круглосуточная охрана.
Жители коттеджного поселка «Троица» смогут воспользоваться услугами инфраструктурных объектов, расположенных за границей поселка.
