ПОД ОТДЕЛКУ, 5 СПАЛЕН
- Тип сделки
- Продажа
- Направление
- Сколковское
- Удаленность от МКАД
- 5 км
- Населённый пункт
- Одинцовский городской округ, Немчиново д.
- Коттеджный посёлок
- СЕТУНЬКА
- Общая площадь дома
- 572 м2
- Площадь участка
- 12 сот.
- Таунхаус
- Нет
Описание
Дом под финишную отделку в Сколково, КП Сетунька, на участке 12 соток.
Стильный коттедж 572 кв.м., 5 спален, 5 санузлов.
Большие площади остекления, высокие потолки, открытые террасы на всех этажах.
В доме выполнены все черновые работы, в том числе, гидроизоляция первого этажа утепление плиты первого этажа, оборудована автоматизированная котельная, установлена система подогрева полов и т.п.
На участке предусмотрена брусчатка вокруг дома с площадкой под авто, пешеходные зоны из брусчатки, газон.
Откатные уличные ворота с автоматикой и калиткой, автоматические гаражные ворота производитель ALUTECH серии Prestige.
Конструктив дома: монолит-кирпич.
Фасады: керамогранит (Италия), панели из лиственницы, аквапанели 12мм Khauf.
Коммуникации:
- газ: магистральный;
- водоснабжение: скважина с подсоединением к дому;
- канализация: септик Топас - 6 с отведением в центральную ливневую систему;
- электричество: заведенное в дом 15 кВт
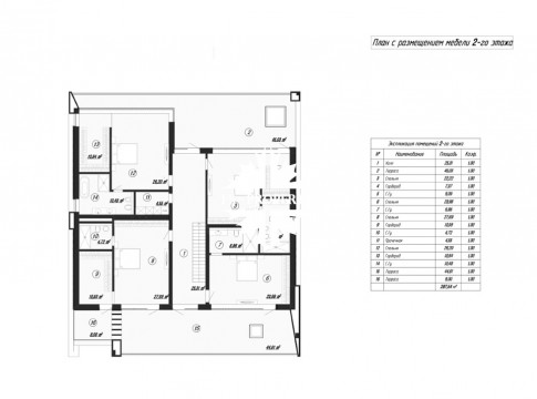
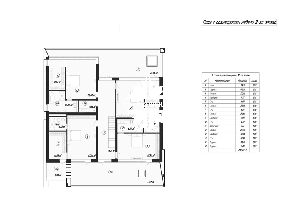
Планировка дома:
1 этаж: холл, прихожая, гардеробная, санузел гостевой, спальня гостевая, кухня - столовая, гостиная, выход на террасу с зоной барбекю, гараж на 2 м/м, котельная.
2 этаж: холл, 4 спальни с ванными, гардеробными комнатами и выходами на террасы.
Охраняемый поселок Сетунька с удобным выездом на Сколковское шоссе, по соседству с инновационным центром Сколково. Идеальное расположение для тех, кто ценит время, кому важно быстро добраться до Москвы.
Поселок примыкает к лесному массиву Мещерского парка.
Поблизости находятся все необходимые объекты социальной инфраструктуры.
Учебные заведения поблизости: Гимназия «Сократ», Одинцовская лингвистическая гимназия, Одинцовский лицей 2. А также, детские сады и развивающие центры.
