Резиденция с бассейном
№ лота
26503
- Тип сделки
- Продажа
- Направление
- Рублево-Успенское
- Удаленность от МКАД
- 24 км
- Населённый пункт
- Одинцовский городской округ, Папушево д.
- Коттеджный посёлок
- РУБЛЕВСКИЕ ГОРКИ
- Общая площадь дома
- 2150 м2
- Площадь участка
- 62 сот.
- Таунхаус
- Нет
Описание
Резиденция площадью 2150 кв.м на участке 62 сотки расположена в 24 км от МКАД по Рублево-Успенскому шоссе в КП Рублевские горки.
В доме: 5 спален, 2 гостиные, 3 кухни, 2 столовые зоны, кабинет с панорамным видом на 4 стороны, спа-комплекс с бассейном, сауной и хаммамом, винный погреб, гараж на 4 м/м, постирочная, балконы и террасы (442 кв.м).
Фишки: лифт обычный и продуктовый, бассейн 15 метров (глубина от 1,2 до 2,2 метров), модный камин с поворотным механизмом на 360 градусов, второй свет в гостиной 7,6 м, снегогенератор.
На участке также расположен двухэтажный дом персонала площадью 214 кв.м.
ПЛАНИРОВКИ
-2 этаж: винный погреб (25,2), лестница (25,5), с/у для персонала (5,6), постирочная (20,4).
-2 этаж: винный погреб (25,2), лестница (25,5), с/у для персонала (5,6), постирочная (20,4).
Технические помещения: электрощитовая (12,6), вент. камера (24,4),тех.помещение лифта (4,3), тех.помещение бассейна (13,1 + 38,4), коридор (90,2), подсобное помещение (1 + 6,2), лестницы (16,9 + 6).
-1 этаж: спа-комплекс: бассейн (188,9), сауна (6,6), хаммам (6,7), душевые (2,5 + 2,8), с/у (2,4), лестница (12,9), лифт, зона отдыха (73,4), терраса (159,3).
Технические помещения: гараж (80,9), навес (33,9), комната охраны (18) с с/у (2,6), тепловой пункт (10,3).
Помещение шеф-повара: техническая кухня (16,7), кладовая для продуктов (3,6), комната отдыха (17,3) с с/у (3,7), холл (10,3).
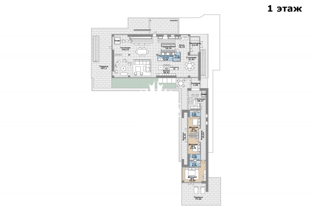
1 этаж: тамбур (12,3), холл (18,2), гардеробная (10,7), гостевой с/у (3,4), гостиная №1 (146,5), столовая (37,8), кухня парадная (30,4), техническая кухня (8,6), гостиная №2 (28,2+7,28), лифт, террасы (167,1).
Детский блок: коридор (24,6), спальня № 1 (15,7) с ванной (4), спальня № 2 (15,7) с ванной (4,3) и балконом (18,2), спальня № 3 (33,5) с ванной (4,3) и балконом (77,4).
2 этаж: мастер-блок спальня (35,9) с балконом (15,3), ванной (25,3) c двумя с/у (2,3 + 2,3) и гардеробной (41,2), холл (14,7), спальня №2 (33,9) с балконом (6), ванной (8,3) и гардеробной (9,9), лестничный холл с зоной отдыха (102,1), лифт.
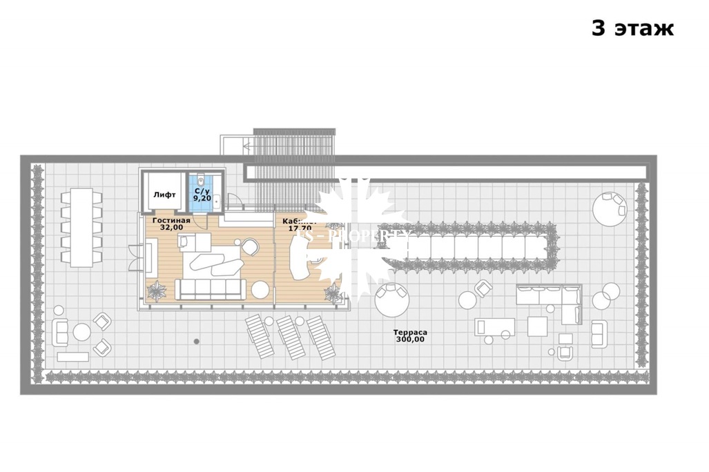
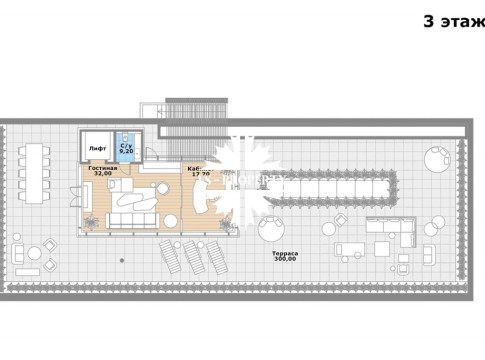
3 этаж: гостиная № 3 (32), кабинет (17,7), с/у (3,2), лифт (6), терраса (300).
Дом охраны (214,2 кв.м).
Квартира персонала: 3 спальни (20,1 + 19,9 + 18,9), кухня (10,4), душевая (5,7), с/у (3,1), коридор (23,5).
-1 этаж: спа-комплекс: бассейн (188,9), сауна (6,6), хаммам (6,7), душевые (2,5 + 2,8), с/у (2,4), лестница (12,9), лифт, зона отдыха (73,4), терраса (159,3).
Технические помещения: гараж (80,9), навес (33,9), комната охраны (18) с с/у (2,6), тепловой пункт (10,3).
Помещение шеф-повара: техническая кухня (16,7), кладовая для продуктов (3,6), комната отдыха (17,3) с с/у (3,7), холл (10,3).
1 этаж: тамбур (12,3), холл (18,2), гардеробная (10,7), гостевой с/у (3,4), гостиная №1 (146,5), столовая (37,8), кухня парадная (30,4), техническая кухня (8,6), гостиная №2 (28,2+7,28), лифт, террасы (167,1).
Детский блок: коридор (24,6), спальня № 1 (15,7) с ванной (4), спальня № 2 (15,7) с ванной (4,3) и балконом (18,2), спальня № 3 (33,5) с ванной (4,3) и балконом (77,4).
2 этаж: мастер-блок спальня (35,9) с балконом (15,3), ванной (25,3) c двумя с/у (2,3 + 2,3) и гардеробной (41,2), холл (14,7), спальня №2 (33,9) с балконом (6), ванной (8,3) и гардеробной (9,9), лестничный холл с зоной отдыха (102,1), лифт.
3 этаж: гостиная № 3 (32), кабинет (17,7), с/у (3,2), лифт (6), терраса (300).
Дом охраны (214,2 кв.м).
Квартира персонала: 3 спальни (20,1 + 19,9 + 18,9), кухня (10,4), душевая (5,7), с/у (3,1), коридор (23,5).
Комната охраны (12) с с/у (3,1).
Технические помещения: котельная (27,7), постирочная (4,9), гараж (36,2), техническое помещение (1,2), коридор (13,6).
Особенности проекта: продуманная логистика, 2 автономных заезда на участок (на каждом - свой пункт охраны), уникальный рельеф, 2 участка для спорта и отдыха, 5 уровней в доме, котельная - в отдельном строении, собственная калитка в строящийся парк, вековые дубы на уличной террасе.
Дом стоит на рельефе, поэтому участок 62 сотки разделен на две части, примерно равные по площади - верхний уровень со входом на 1 этаж и нижний на -1 этаже с прямым доступом в спа-комплекс.
С нижнего участка есть выход непосредственно в строящийся парк, который расположен на уровень ниже и не нарушает приватность жителей дома. На благоустроенной территории будут детские площадки, зоны отдыха, ландшафтное освещение, амфитеатр, терраса для занятий йогой, прогулочная тропа с деревянным настилом длиной более 1 км в одну сторону и даже искусственное озеро с пляжем.
На верхнем уровне растут шикарные вековые дубы с пышными кронами.
По периметру участков высажены туи и ели, оборудована зона барбекю и зона отдыха, система автополива, альпийская горка, подсветка дорожек.
По периметру участков высажены туи и ели, оборудована зона барбекю и зона отдыха, система автополива, альпийская горка, подсветка дорожек.
Камерный элитный коттеджный поселок «Рублевские Горки» (20 домов) находится в 24 км от МКАД по Рублево-Успенскому шоссе в Одинцовском районе Подмосковья, на территории деревни Папушево.
В 500 м от поселка протекает р. Вязёмка. Вдоль территории поселка ведется строительство благоустроенного современного парка при поддержке губернаторской программы «Парки Подмосковья».
В ближайшей доступности ресторан Remy Kitchen Bakery, загородный фитнес-клуб Riviera Fitness & SPA, продуктовые магазины ВкусВилл и Перекресток, различные кофейни и рестораны, салоны красоты, теннисный клуб, аптеки, банки.
В окружении - элитные образовательные и спортивные учреждения: Гимназия им. Примакова, Ломоносовская школа, Английская международная школа, Академия фигурного катания Евгения Плющенко. Медицинский центр Лапино — всего в 10 минутах.
В 15 км от поселка инфраструктура Жуковки и Барвихи.
Удобный выезд на платную трассу.
