1. Главная
  2. Загородная недвижимость
  3. Загородные дома, поселки

СТИЛЬНЫЙ ДОМ С 4 СПАЛЬНЯМИ

№ лота
15846
Тип сделки
Продажа
Направление
Рублево-Успенское
Удаленность от МКАД
15 км
Населённый пункт
Одинцовский городской округ
Коттеджный посёлок
РОМАНОВО-4
Общая площадь дома
640 м2
Площадь участка
40 сот.
Таунхаус
Нет
Стоимость
120 359 360 руб.
 

Описание

Стильный коттедж в камерном поселке Романово-4.
В доме 4 просторные спальни, SPA-зона с бассейном и сауной, бильярдная, большая оборудованная терраса. 
Прекрасный участок с хвойными и лиственными деревьями, декоративными кустарниками и цветами.
Интерьер дома выдержан в стиле Ар-деко. Есть вся необходимая мебель и техника. 
Монолитно-кирпичный дом с внешней отделкой из лиственницы имеет 4 функциональных уровня.
 
На цокольном этаже расположены: сауна с бассейном, бильярд, гардеробная, с/у, выход на террасу.
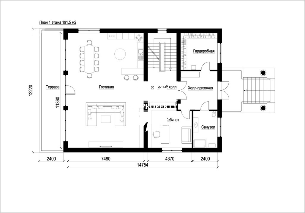
На первом этаже расположены: прихожая, гардеробная, холл, гостиная, кухня-столовая, кабинет, с/у, терраса.
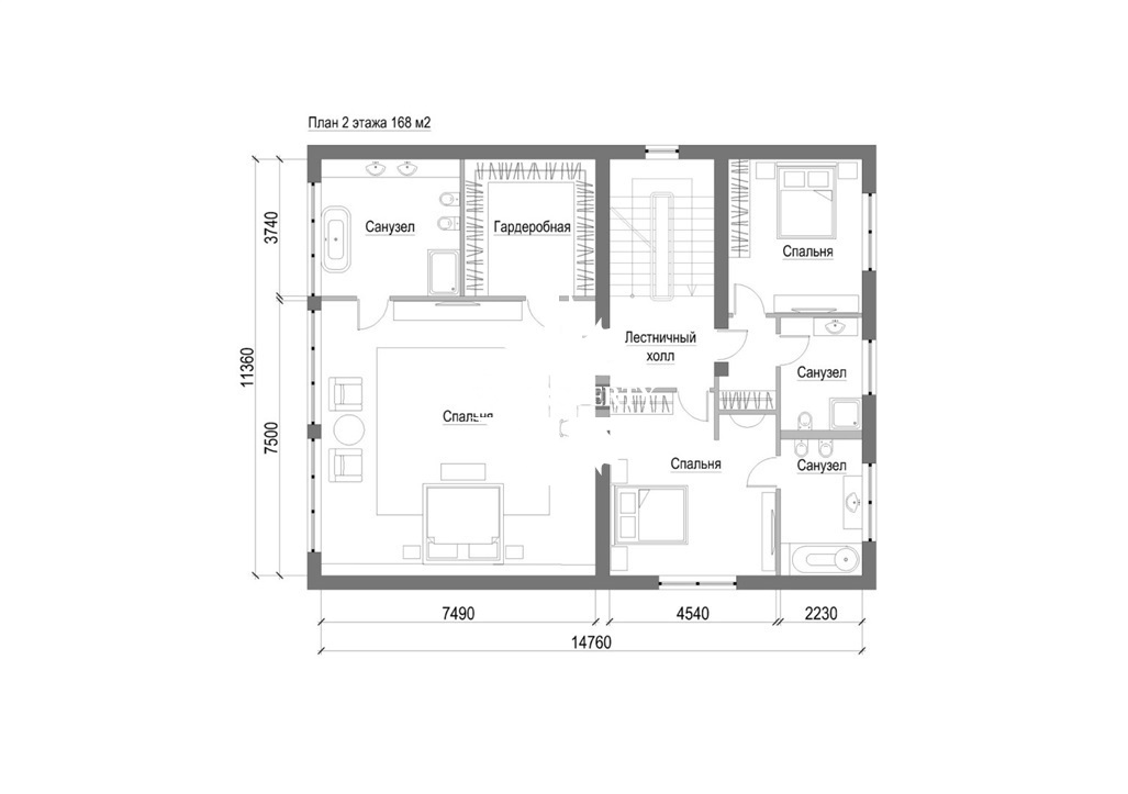
На втором этаже: холл, 3 спальни со своими с/у и гардеробными.
На третьем этаже: зона отдыха, спальня, с/у, терраса.
 
Охраняемый коттеджный поселок РОМАНОВО-4 в прекрасном месте на Рублевке. Удобно и быстро добираться до Москвы. Здесь созданы все условия для комфортной жизни. Рядом находятся престижные учебные заведения: Первая Московская Гимназия, школа Президент, Гимназия в Жуковке. Магазины, рестораны, спортивные центры не далее 5-15 минут на автомобиле. 


 

Похожие объекты

лот №26382

Одинцовский городской округ, Барвиха д., РЕЧНОЕ

м2 2500
сот. 21
1 880 615 000 руб.
Подробнее