Сергея Макеева улица, 11/9с1-10
- Тип сделки
- Продажа
- Тип объекта
- Офисное помещение
- Район
- Пресненский
- Метро
- Улица 1905 года
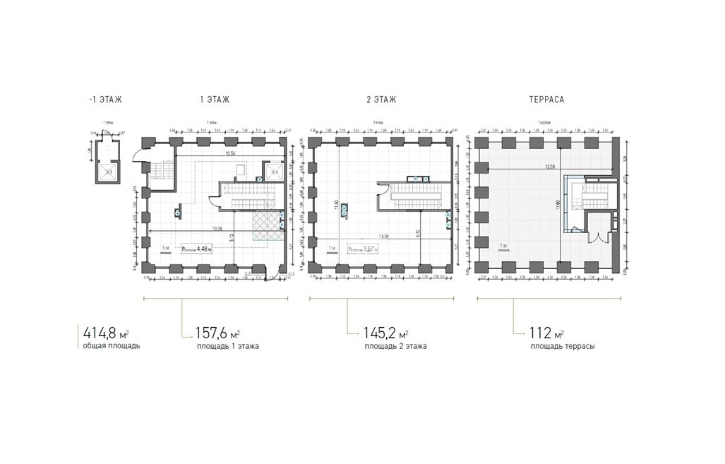
- Общая площадь
- 414.8 м2
- Стоимость
- по запросу
Описание
Всего 4 офисные виллы в составе роскошного квартала Life Time.
Это редкий формат обособленной офисной недвижимости: в лотах всего два этажа, собственный лифт с паркинга и отдельный вход с улицы для лёгкого и быстрого доступа. Приватные террасы на кровле идеально подходят для встреч с клиентами или спокойного отдыха после рабочего дня.
Офисные виллы расположены в богатеющей Пресне. Это сложившийся деловой район: в радиусе 1,5 км — Центр международной торговли, «Москва-Сити», «Экспоцентр», культурно-деловой квартал «Рассвет» и офисно-гастрономический кластер «Трёхгорная мануфактура». В шаговой доступности более 10 ресторанов, где можно организовать завтрак или ужин с партнёрами, рядом премиальные фитнес-клубы с бассейнами.
Престижная локация Пресни идеально подходит для размещения офиса. С 2016 года в районе построено 20 премиальных домов, ещё более 35 строится. В ближайшем будущем статусная аудитория окружения вырастет благодаря 1250 жителям Life Time.
Офисные виллы с роскошной и лаконичной архитектурой полностью новые, они созданы по современным стандартам. За каждым лотом заранее закреплено место для вывески. Оно выполняется в едином дизайн-коде для сохранения общей стилистики и привлекательности квартала, выглядит дорого и эффектно.
Офисные виллы оборудованы новыми и лучшими в своём классе инженерными системами, что позволяет обеспечить их всем необходимым для комфортной работы. Помещения обладают достаточными электрическими мощностями, в них выполнена подготовка под устройство приточно-вытяжной вентиляции. Для внешних блоков кондиционеров спроектированы скрытые ниши на кровле — такое решение позволит сохранить красоту фасадов.
Площадь офисных помещений варьируется от 328 до 424 кв. м. У лотов свободная планировка и потолки высотой от 3,57 до 4,48 м. Инвесторам легче найти арендатора благодаря ограниченности предложения офисных вилл, а конечным пользователям — продать офис при изменении планов.
Служба комфорта Sminex обеспечивает сервис высокого уровня: круглосуточно заботится о жилом квартале, в том числе об офисных виллах, внимательно следит за тем, чтобы всё работало так, как было изначально задумано.
Девелопер проекта — Sminex, перфекционисты Fine Development. Компания обладает 24-летним опытом строительства жилой и коммерческой недвижимости, создаёт комфортную и престижную среду. В 2022 году Sminex приобрёл девелопера «Интеко», в 2024 году — Ingrad. Это позволило объединить многолетний опыт строительства домов и наработанные технологии.
