КВАРТАЛ ТИШИНСКИЙ БУЛЬВАР
- Тип сделки
- Продажа
- Тип объекта
- Торговое помещение
- Район
- Пресненский
- Адрес
- Электрический переулок, 1
- Метро
- Белорусская
- Удаленность от метро
- 10 мин. пешком
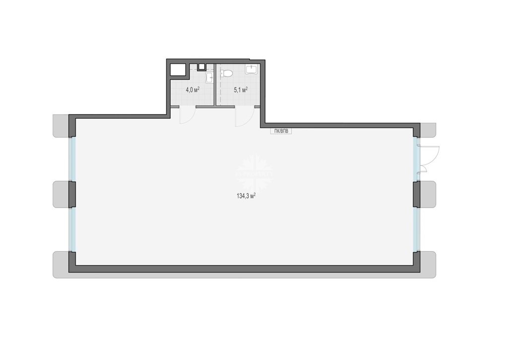
- Общая площадь
- 143.4 м2
Описание
Помещение свободного назначения с технологией для размещения общепита в элитном квартале. Имеет отдельный вход, панорамные витрины, мокрую точку.
Высота потолка 5,85 м. На фасаде предусмотрено место под рекламную вывеску. Возможно устройство летней террасы. Электрическая мощность 41,4 кВт.
- Планировка на 2 стороны
- Ориентация по сторонам света: запад, восток
- Назначение: торговое помещение, кафе и рестораны
Ретейл в элитном квартале «Тишинский бульвар» с растущим трафиком на Белорусской. Расположен в сформированном инфраструктурном кластере с платёжеспособной аудиторией численностью более 20 тыс. человек.
Бесперебойный трафик обеспечен 7 тыс. пешеходов и 16 тыс. автомобилей в сутки. В будущем число потенциальных посетителей вырастет благодаря состоятельным жителям и сотрудникам офисной части «Тишинского бульвара».
Дома элитного квартала видно издалека — они привлекают внешним обликом. Каждое здание шикарно и имеет свою неповторимую архитектуру.
В «Тишинском бульваре» 21 ретейловое пространство площадью от 32 до 240 кв. м, свободной планировкой и потолками высотой от 3,2 до 6,7 м.
Все помещения имеют отдельный вход и заранее закреплённое место под вывеску. Широкий ассортимент лотов предполагает возможность размещения предприятий общественного питания: ресторана, кофейни, столовой.
Дополнительно предлагается помещение площадью 632 кв. м под частный детский сад.
Современные и качественные лоты оборудованы лучшими в своём классе системами комфорта. На подземном паркинге доступна автомойка.
Служба комфорта Sminex круглосуточно заботится о квартале, в том числе о ретейл-пространствах. Её главная задача — оказывать первоклассный сервис, сохранять концепцию домов и улучшать качество жизни день за днём.
Девелопер проекта — Sminex, перфекционисты Fine Development. Компания создаёт совершенные дома: восхищающие, удобные, красивые, с наилучшим сервисом.
